[Logo da Fabrica Arp]
Acesso Exclusivo
Esqueci a senha
[Espande Menu]
[Arp]

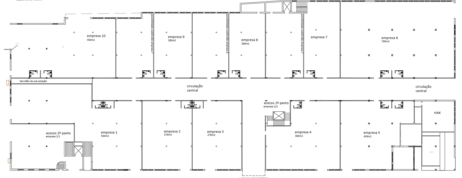
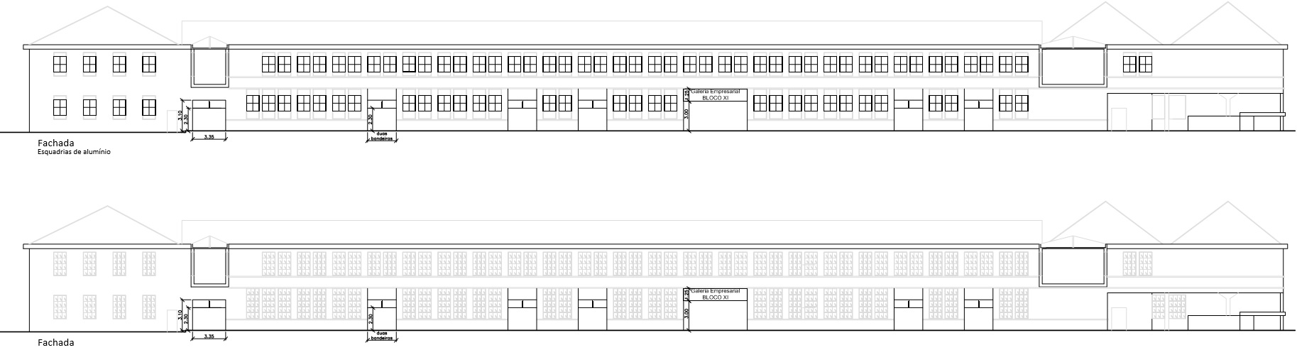
Bloco 11

Prédio com 11.600 m2

Locação de módulos a partir de 120 m² (para espaços maiores, consulte disponibilidade)

Pé direito elevado 

Corredor de serviço que atende a todo o piso térreo

Ótima iluminação e circulação de ar

Telefone (22) 2525-8300

Imóveis comerciais disponíveis para locação

Não existem imóveis disponiveis no momento

Solicite mais informações agora

Espaço Arp